Existing Condition Plans

As Built Surveys

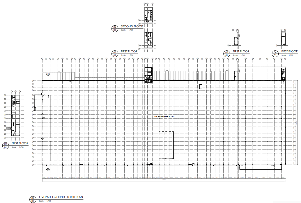
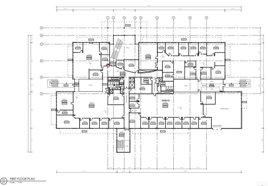
An As-Built (Existing Conditions) Floor Plan provides an accurate, survey-verified record of a building’s current layout. Captured in precise plan view, it details dimensions, wall types, structural elements, services, and all existing fit-out components such as doors, windows, and columns. This ensures the plan reflects what is actually on site, not just what was originally designed or documented, which may have changed during or after construction.

Tru3Data produces detailed architectural floor plans, reflected ceiling plans, elevations, and cross-sections to support design teams, documentation specialists, fit-out contractors, and approval processes. These up-to-date drawings give you a dependable base for planning, renovation, refurbishment, or compliance work, eliminating guesswork and ensuring confident decision-making at every stage.

  • Elevations

  • Sections

  • Floor plans

  • Reflected Ceiling Plans