Retail Tenancy Plans

Tenancy Plans

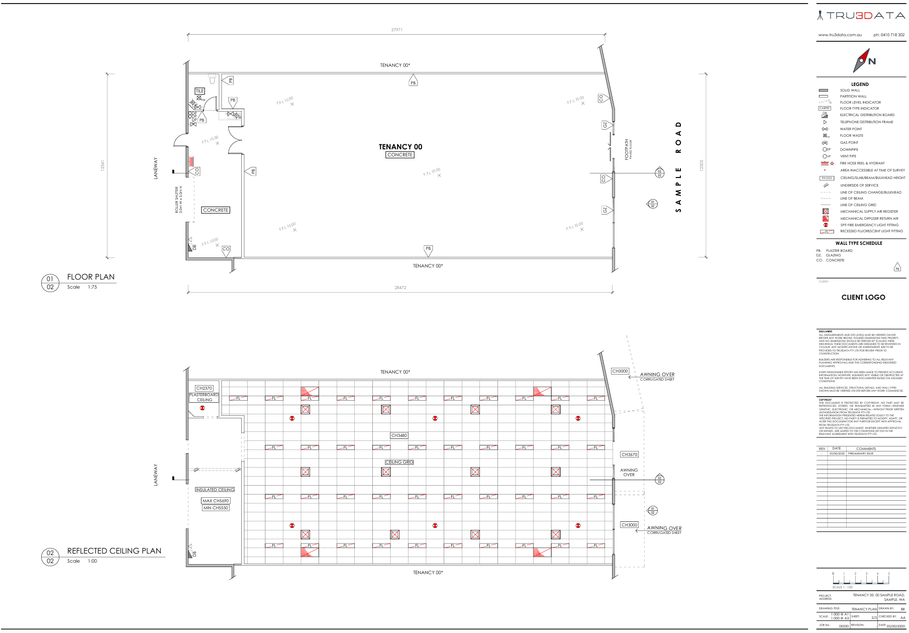
Retail tenancy drawings provide industry-standard documentation for shell spaces, including detailed floor plans, reflected ceiling plans, shopfront elevations, and cross-sections. These drawings form a reliable base for retail leasing, design coordination, approvals, and fit-out planning.

Whether you're a new tenant preparing to move into a retail space or a building manager overseeing tenancy works, accurate retail tenancy plans streamline the fit-out process and help ensure everything runs smoothly from concept to completion.

  • Floor plans

  • Reflected Ceiling Plans

  • Elecations

  • Sections