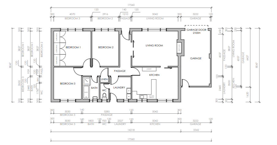
Residential House Plans

Tru3Data produces detailed and reliable residential floor plans to support homeowners, architects, interior designers, renovation specialists, and contractors. These upto date drawings give you a dependable base for development applications, planning renovations, refurbishments, extensions, or compliance work, eliminating guesswork and ensuring confident decision making at every stage.